Washington Road, South Fulton, GA

$9,500,000

Previous Next

38.94

Acres

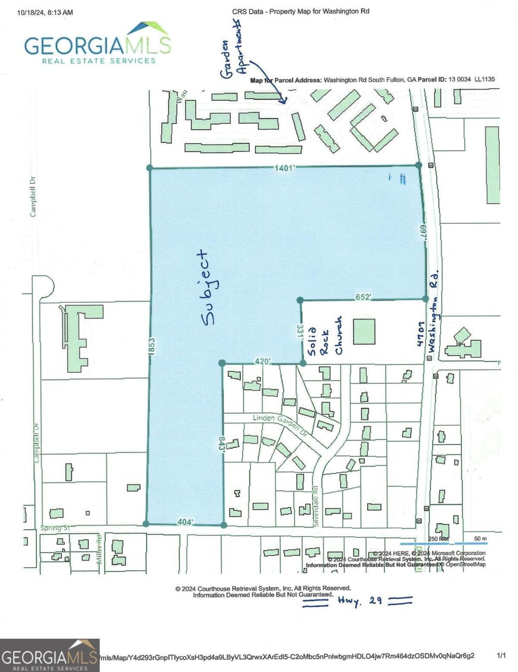
About Washington Road

RARE FIND! 38.94 Vacant Acres perfectly situated between Hwy 29 and I-285, just minutes from Hartsfield-Jackson and Camp Creek Parkway Shopping District! Suitable for a variety of uses including Commercial, Apartments. and Churches. Golden opportunity! Owner would consider owner financing.

Features of Washington Road

MLS® # 10518588
Price $9,500,000
Bathrooms 0.00
Acres 38.94
Year Built 1701
Type Commercial Sale
Status Active

Community Information

Address Washington Road
Subdivision none
City South Fulton
County Fulton
State GA
Zip Code 30349

Amenities

Utilities Cable Available, Electricity Available, High Speed Internet, Natural Gas Available, Sewer Available, Water Available
Parking Other
Is Waterfront No
Has Pool No

Interior

Heating None
Cooling None
Fireplace No

Exterior

Lot Description Level
Roof Other
Construction Other

Additional Information

Days on Market 52
Zoning agricultural
Foreclosure No
Short Sale No
RE / Bank Owned No

Listing Details

OfficeBarfield Realty Llc

Listing Map

Request a Showing

Provide a valid email address.
When would you like to view this property?