About 400 Hawthorne Avenue 5
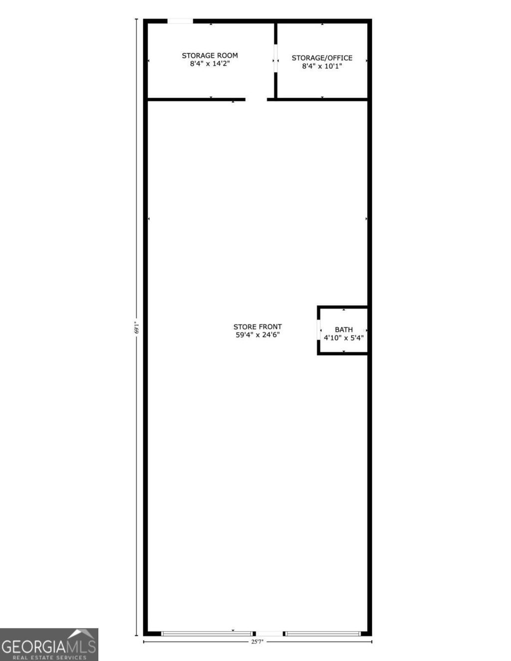
Property Description: Introducing an affordable, in-town retail leasing opportunity in Power Shopping Center. This property boasts a prime in-town location near West Broad Street and Loop 10, ensuring excellent visibility and accessibility. With ample parking and proximity to the residential, restaurant, and other retail businesses, this commercial space offers an exceptional leasing solution for small businesses and entrepreneurs looking to get started. Choose from several great spaces tailored to accommodate various business needs, making it ideal for those seeking a strategically positioned location. Suite 5: Inline space with a large storefront measuring roughly 69x25 and a restroom and large back storage/office space. Location Description: Experience the convenience of this in-town location, central to hospitals, schools, parks, and restaurants. Close to West Broad Street and Loop 10, this location offers a prime opportunity for retail or strip center tenants to engage with an active local community. Embrace the potential for retail success in the Classic City. Lease Rate: $12.50/SF/Year
Features of 400 Hawthorne Avenue 5
MLS® # | 10428631 |
---|---|
Price | $13 |
Bathrooms | 0.00 |
Acres | 1.23 |
Year Built | 1972 |
Type | Commercial Lease |
Status | Active |
Community Information
Address | 400 Hawthorne Avenue 5 |
---|---|
Subdivision | None |
City | Athens |
County | Clarke |
State | GA |
Zip Code | 30606 |
Amenities
Utilities | Sewer Available, Water Available |
---|---|
Parking | Parking Lot |
Is Waterfront | No |
Has Pool | No |
Interior
Heating | Electric |
---|---|
Cooling | Electric |
Fireplace | No |
Exterior
Lot Description | Near Public Transit |
---|---|
Roof | Metal |
Construction | Brick |
Additional Information
Days on Market | 217 |
---|---|
Zoning | CG |
Foreclosure | No |
Short Sale | No |
RE / Bank Owned | No |
Listing Details
Office | Nai Elrod Group |
---|